Main Street Matters: March 31, 2023

Town Meeting April 3


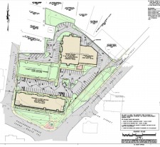
Town Meeting April 3


There will be a Town Meeting on Monday, April 3rd at 6:30 pm in the Windsor Town Council chambers to approve the acceptance and expenditure of a $3.2 million State of Connecticut grant to support the redevelopment of the old Arthur’s Plaza in Windsor Center into a dynamic mixed-use project. The development was one of the few winners of the CT Communities Challenge Grant Program, which sought to revitalize underinvested areas around the state. The Town of Windsor is serving as a pass through for the grant proceeds, and no Town funds are being expended on the project. Come out and show your support for this exciting project!

Coming Up


Coming Up


There are lots of activities coming up in the center this spring, summer and fall. Be a part of them by sponsoring or signing up to be a planter designer or volunteer.

Farmers Market - June 15 - October 19
Business partners sponsorship $100 per year

Summer Concerts - July 6 - August 24
Sponsorships $1,500 (1/2 and 1/4 sponsorships available)

Monarch Festival and Upcycled Planter Challenge July 8 - 15
Looking for Planter Designers and Sponsors


Join / Renew


Join / Renew


Be a part of Windsor's future! No matter where you live or work, you can be a part of First Town Downtown as a member!

As a Main Street program, we cultivate the qualities that make Windsor center irresistible, grow local businesses, charm residents and visitors, and spark community pride.

We believe "Main Street" is for everyone. At the core of our approach to revitalization is a commitment to creating places of shared prosperity, equal access to opportunity, and inclusive engagement.


read more


Upcoming Events

3/24
America 250-themed Homeschool Program at Windsor Historical Society
3/26
Veterans Coffee Hour
3/28
Print, Stitch, & Paint (3 weeks)
3/28
Pasta Dinner Fundraiser
3/29
Gentle Yoga for Stress Management
3/30
Drawing II
4/3
Community Easter Egg Hunt
4/4
Print, Stitch, & Paint (3 weeks)
4/5
Open Art Classroom
4/5
Gentle Yoga for Stress Management



Mission Statement
The mission of First Town Downtown is to position and promote Windsor Center as a premier New England town center that protects and utilizes its proud heritage as the basis for developing vibrant recreational, economic and cultural activity.

Become a member of First Town Downtown and be a part of the growth of Windsor's downtown area and Windsor as a whole! Join or Renew your membership in First Town Downtown, Windsor's Main Street program.